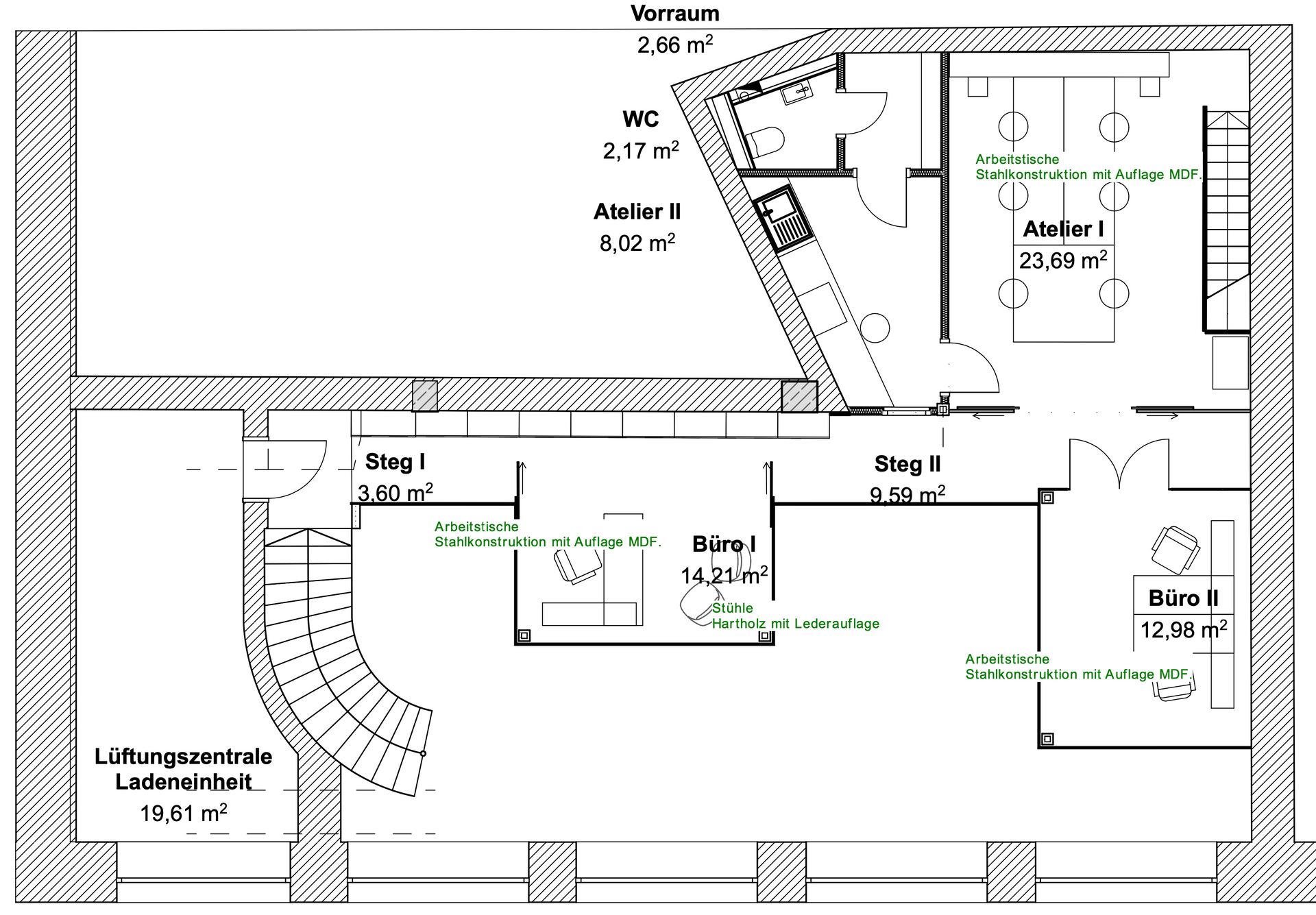
UM- UND AUSBAU EINER LADENFLÄCHE ALS JUWELIERGESCHÄFT MIT WERKSTATT
BAUHERR SÉVIGNÉ Goldschmiede GmbH
STANDORT Brienner Strasse 4, München
Umsetzung einer vorhandenen Vorplanung, hin zur Realisierung, durch Erarbeitung einer genehmigungsfähigen Planung. Umsetzung der räumlichen Vorgaben des Bauherren unter Berücksichtigung der besonderen Belange des Brandschutzes.
Planung der Stahlkonstruktion als raumtragendes Gerüst in Abstimmung mit Tragwerksplaner, Brandschutzsachverständigen und ausführender Firma, einschliesslich der raumausbildenden Maßnahmen in Trockenbau, sowie Baubegleitung hierzu.
Gestaltung Innenarchitektur Babak Shahverdi






